A Dança Contemporânea das Formas na Paisagem Urbana

Uma sinfonia arquitetônica que harmoniza o passado e o presente no coração de Lorient.

19 Collective Housing Units

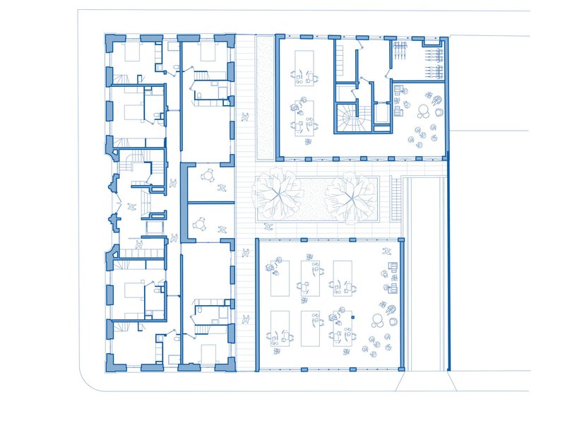
No coração do distrito Alsace-Lorraine, em Lorient, ergue-se uma obra que reinterpreta com maestria a essência da modernidade clássica. Este projeto de 19 unidades habitacionais coletivas, concebido pelo Atelier 56S, explora a interseção entre a tradição e a contemporaneidade, desafiando os limites do desenho urbano sem comprometer sua integridade histórica. A arquitetura do bairro, reconstruída após a guerra, é imbuída de uma poética simetria, com telhados de duas águas, aberturas verticais e molduras decorativas. O novo projeto se propõe a dialogar com esse patrimônio, ao mesmo tempo que se alinha ao caráter monumental do edifício da Banque de France, localizado a oeste do quarteirão.

19 Collective Housing Units
19 Collective Housing Units

A harmonia urbana, um dos pilares deste empreendimento, foi preservada com precisão cirúrgica. Os volumes do projeto se adaptam aos edifícios adjacentes, respeitando tanto a coerência urbana quanto a qualidade da luz solar. Com um volume de cinco andares ao longo da Rue Clisson e outro de piso térreo ao longo da Rue Vaubanet, cria-se um espaço entre a imponente Banque de France e as novas construções, liberando um pátio paisagístico no centro. Este espaço não apenas promove a coesão do quarteirão fragmentado, mas também introduz um caráter público que destaca o edifício institucional, sem ofuscar sua presença imponente.

19 Collective Housing Units
19 Collective Housing Units

A integração das novas construções com o entorno é um testemunho do compromisso com a qualidade arquitetônica e urbana. O recuo do último andar, juntamente com o ritmo e a proporção das janelas, confere às fachadas uma unidade que dialoga harmoniosamente com o contexto. A generosidade do design é evidente em cada apartamento, que se beneficia de uma orientação dupla ou tripla e de um espaço ao ar livre conectado à sala de estar voltada para o sul. Este cuidado meticuloso com os detalhes assegura que cada residência seja um santuário de luz e espaço.

19 Collective Housing Units
19 Collective Housing Units

O projeto, fundindo-se com seu ambiente mineral, faz uso de elevações de concreto tratadas com uma leve lavagem, permitindo que o material permaneça visível, uma escolha que enaltece a sinceridade dos materiais e a pureza das formas. A coreografia entre os espaços internos e externos é aprimorada por uma seleção criteriosa de materiais de alta qualidade, fornecidos por renomados fabricantes como Saint-Gobain e Belle Epoque.

19 Collective Housing Units
19 Collective Housing Units

No domínio da execução, a obra contou com a expertise de uma equipe de profissionais dedicados, desde a estrutura até a carpintaria, cada componente da construção foi meticulosamente planejado e executado para assegurar a excelência em cada detalhe. O resultado é uma composição arquitetônica que não apenas respeita, mas também celebra a história e a evolução do espaço urbano de Lorient, oferecendo uma nova visão para a habitação coletiva no século XXI.

19 Collective Housing Units
19 Collective Housing Units