O Refúgio Harmônico de Hannan

Um espaço de encontro que entrelaça tradição e modernidade em um cenário verdejante

Hannan University Building 4 / Nikken Sekkei - Exterior Photography

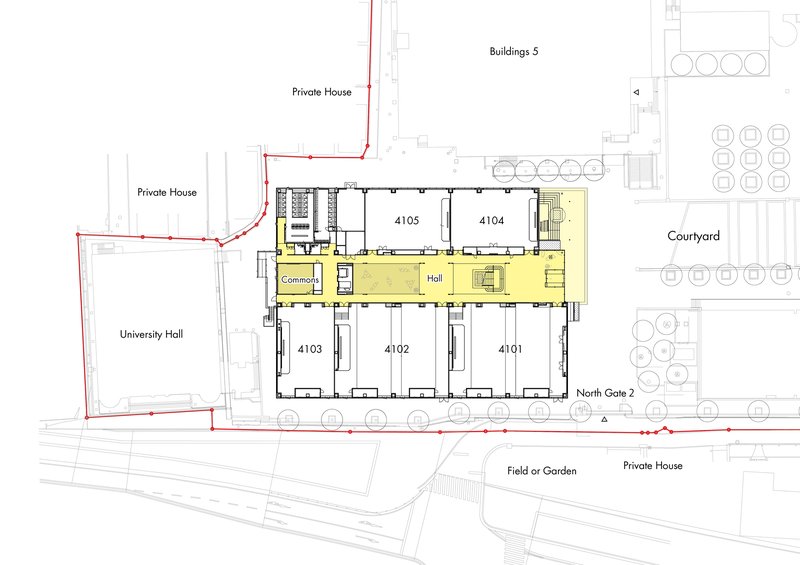
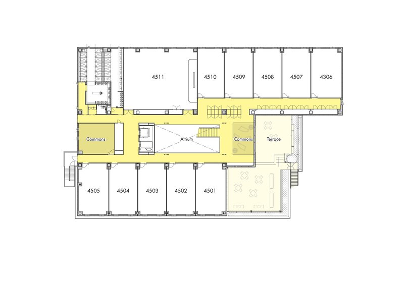
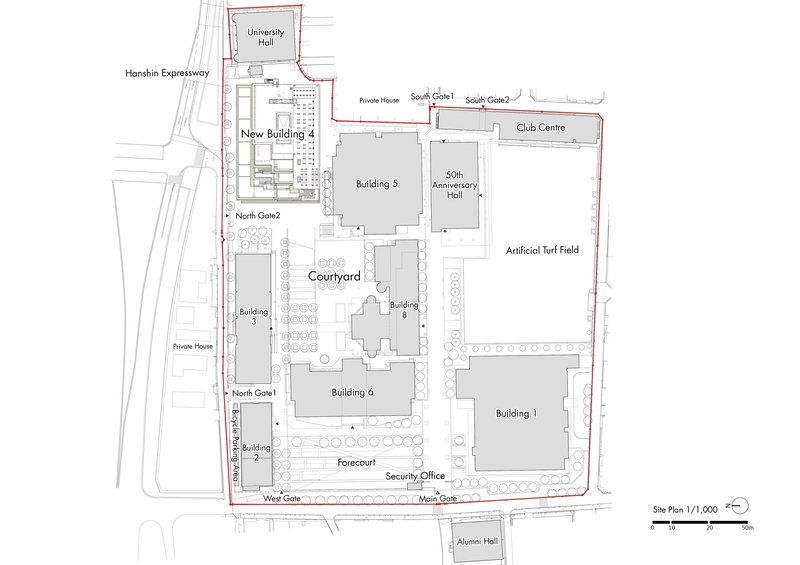
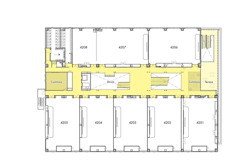
Em um canto sereno ao sul da vibrante Osaka, a Universidade Hannan desponta como um baluarte de tradição e erudição, prestes a comemorar seu sexagésimo aniversário em 2025. Situada em uma área exuberante ao longo do rio Yamato, a universidade abraça uma rica tapeçaria de história que se reflete em sua arquitetura elegante e ponderada. O Edifício 4, projetado pelo renomado escritório Nikken Sekkei, emerge como uma joia arquitetônica que simboliza a união do campus sul com o campus principal, reforçando o sentido de comunidade e continuidade.

Hannan University Building 4 / Nikken Sekkei - Exterior Photography
Hannan University Building 4 / Nikken Sekkei - Exterior Photography

Adentrar este edifício é ser envolvido por uma aura de serenidade e encanto. A luz natural, filtrada pelas amplas janelas de vidro, banha os interiores com um brilho suave, criando uma dança de sombras que se move gentilmente ao longo do dia. A paleta de materiais, cuidadosamente selecionada, evoca uma sensação de atemporalidade e sofisticação. O uso de madeira nobre, aço escovado e concreto aparente estabelece um diálogo harmonioso entre o natural e o industrial, entre o passado e o futuro.

Hannan University Building 4 / Nikken Sekkei - Exterior Photography
Hannan University Building 4 / Nikken Sekkei - Exterior Photography

Cada espaço dentro do Edifício 4 é uma ode à funcionalidade sem comprometer a beleza. Salas de aula flexíveis e áreas de estudo abertas estimulam a colaboração e a troca de ideias, enquanto os volumes escalonados do edifício criam terraços que se abrem para o verde circundante, oferecendo aos estudantes um santuário de tranquilidade e inspiração. A disposição arquitetônica busca não apenas atender às necessidades acadêmicas, mas também fomentar um ambiente de bem-estar e equilíbrio.

Hannan University Building 4 / Nikken Sekkei - Interior Photography, Handrail
Hannan University Building 4 / Nikken Sekkei - Interior Photography, Handrail

A experiência espacial aqui transcende o mero uso, transformando-se em uma vivência sensorial rica e envolvente. Os corredores, com suas linhas elegantes e acabamentos primorosos, conduzem os visitantes por um percurso que revela a cada passo novas perspectivas e detalhes. Os elementos construtivos, executados com precisão e maestria, demonstram o compromisso com a excelência que caracteriza tanto a universidade quanto seus colaboradores.

Hannan University Building 4 / Nikken Sekkei - Interior Photography, Living Room, Chair
Hannan University Building 4 / Nikken Sekkei - Interior Photography, Living Room, Chair

À medida que o campus se adapta às demandas contemporâneas, o Edifício 4 se destaca como um testemunho da capacidade de integrar inovação e tradição de forma coesa. Este espaço não é apenas um local de aprendizado, mas um símbolo de transformação e continuidade, um refúgio harmônico onde a natureza e a arquitetura se entrelaçam em uma dança eterna. A Universidade Hannan, ao celebrar seu marco de sessenta anos, reafirma seu papel como um farol de conhecimento, com suas raízes firmemente plantadas na história e um olhar atento ao futuro.

Hannan University Building 4 / Nikken Sekkei - Exterior Photography
Hannan University Building 4 / Nikken Sekkei - Exterior Photography