Refúgio de Criatividade nas Alturas de Bandung

Uma obra-prima de design compacto e funcional floresce no coração pulsante da juventude indonésia.

Mankind Studios / Studio Kota - Image 1 of 37

Em meio ao vibrante panorama urbano de Bandung, onde a efervescente cultura jovem e a economia criativa se entrelaçam, ergue-se o Mankind Studios, uma joia arquitetônica que redefine o conceito de edifício de uso misto. Aninhado em um terreno estreito, este projeto, obra do respeitado Studio Kota, captura a essência do ambiente que o rodeia, transformando desafios em oportunidades de design magistral.

Mankind Studios / Studio Kota - Image 2 of 37
Mankind Studios / Studio Kota - Image 2 of 37

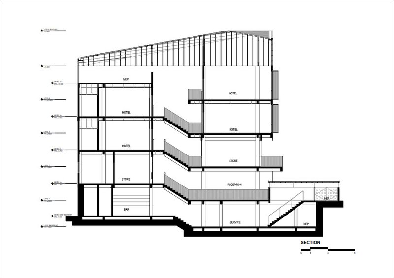
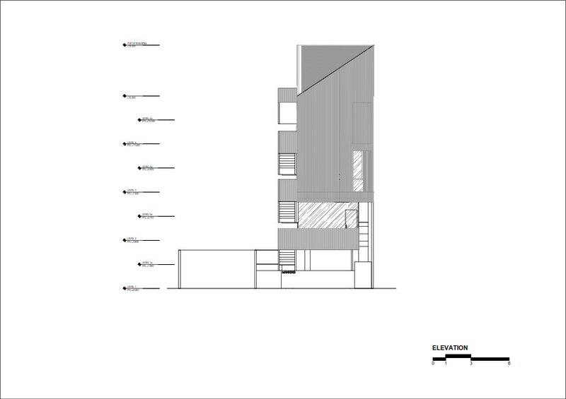
A cidade de Bandung, situada em uma altitude elevada e cercada por majestosas montanhas, desfruta de um clima mais ameno em comparação com outras metrópoles indonésias. Esta peculiaridade climática é um elemento crucial que molda a abordagem espacial e ambiental do edifício. O Mankind Studios utiliza tais condições a seu favor, oferecendo um espaço que não apenas abriga, mas também inspira aqueles que têm o privilégio de o adentrar.

Mankind Studios / Studio Kota - Image 3 of 37
Mankind Studios / Studio Kota - Image 3 of 37

Ao cruzar seu limiar, o visitante é imediatamente envolvido por uma dança de luz e sombra, meticulosamente orquestrada através das aberturas estrategicamente posicionadas. A luz natural flui suavemente, como uma corrente de água cristalina, banhando os interiores em um brilho sereno que varia ao longo do dia. As texturas dos materiais, escolhidos com precisão quase artesanal, intensificam essa experiência sensorial. Concreto exposto e madeira local dialogam entre si, evocando uma harmonia que ecoa a paisagem natural de Bandung.

Mankind Studios / Studio Kota - Image 4 of 37
Mankind Studios / Studio Kota - Image 4 of 37

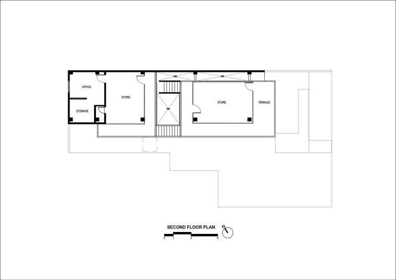
A organização espacial do edifício é uma ode à funcionalidade sem renunciar à beleza. Cada metro quadrado é aproveitado com engenhosidade, resultando em ambientes que são ao mesmo tempo íntimos e expansivos. O equilíbrio entre forma e função é evidente em cada detalhe, desde a disposição dos espaços de convivência até a integração de elementos sustentáveis que respeitam o meio ambiente.

Mankind Studios / Studio Kota - Image 5 of 37
Mankind Studios / Studio Kota - Image 5 of 37

O Mankind Studios não é apenas um edifício, mas um microcosmo da vida urbana contemporânea, onde o design atua como um elo que conecta as pessoas ao seu entorno. A experiência de estar dentro deste espaço transcende o mero abrigo, proporcionando uma sensação de pertencimento e identidade. É um testemunho do poder transformador da arquitetura quando executada com maestria e visão.

Mankind Studios / Studio Kota - Image 6 of 37
Mankind Studios / Studio Kota - Image 6 of 37

Assim, o Mankind Studios se destaca não apenas por sua estética refinada, mas também por sua capacidade de se tornar parte intrínseca da narrativa cultural de Bandung. Esta obra-prima de Studio Kota representa uma nova era de design arquitetônico na Indonésia, onde inovação e tradição se encontram em perfeita sincronia.

Mankind Studios / Studio Kota - Image 7 of 37
Mankind Studios / Studio Kota - Image 7 of 37

Newsletter

Receba nossa edição trimestral sobre arquitetura contemporânea.