A Sinfonia da Luz e Espaço

Uma transformação que revela a leveza e sofisticação do morar contemporâneo em um apartamento urbano

Apartamento Miguel Tostes / BARRA Arquitetos - Imagem 1 de 36

Em meio à vibrante pulsação urbana, surge um projeto de interiores que redefine os conceitos de habitar. Este apartamento, localizado em um novo condomínio de aproximadamente 90 metros quadrados, outrora compartimentado em compartimentos tradicionais, se transforma em um verdadeiro refúgio de fluidez e amplitude, revelando o toque sagaz da BARRA Arquitetos.

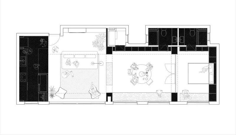
Apartamento Miguel Tostes / BARRA Arquitetos - Imagem 20 de 36
Apartamento Miguel Tostes / BARRA Arquitetos - Imagem 20 de 36

Desde o primeiro momento, ao cruzar a soleira, é possível sentir a intenção clara dos proprietários: um desejo intrínseco por um espaço contínuo, onde a arquitetura se desdobra em um diálogo harmonioso entre o interior e o exterior. A luz natural, generosa e envolvente, se espalha por todo o ambiente, acariciando suavemente as superfícies cuidadosamente escolhidas, criando uma dança de sombras que realça a textura dos materiais nobres.

Apartamento Miguel Tostes / BARRA Arquitetos - Imagem 2 de 36
Apartamento Miguel Tostes / BARRA Arquitetos - Imagem 2 de 36

A madeira, com sua presença calorosa e acolhedora, se entrelaça com o concreto aparente, formando um contraste que é ao mesmo tempo sutil e impactante. Este material, robusto e eterno, se revela nas paredes e no piso, proporcionando uma base sólida sobre a qual a vida cotidiana se desenrola com elegância. A paleta de cores, serena e equilibrada, evoca uma sensação de tranquilidade, permitindo que os habitantes se sintam conectados com a natureza, mesmo no coração da cidade.

Apartamento Miguel Tostes / BARRA Arquitetos - Imagem 3 de 36
Apartamento Miguel Tostes / BARRA Arquitetos - Imagem 3 de 36

A cozinha, anteriormente um espaço restrito e isolado, agora se abre generosamente para a sala de estar, criando um ambiente integrado que convida à convivência e à interação. A ilha central, de mármore polido, se transforma no epicentro da vida social, onde a família e amigos se reúnem, compartilhando momentos e histórias. A suavidade do mármore contrasta com a rigidez do aço inoxidável dos eletrodomésticos, em um jogo de opostos que se completa em perfeita harmonia.

Apartamento Miguel Tostes / BARRA Arquitetos - Imagem 4 de 36
Apartamento Miguel Tostes / BARRA Arquitetos - Imagem 4 de 36

Na suíte principal, o design continua a narrativa de elegância discreta. O quarto se expande em direção ao banheiro, onde a transparência do vidro permite que a luz natural penetre, criando um ambiente de serenidade e introspecção. As linhas limpas e o uso minimalista dos materiais reforçam a sensação de espaço, enquanto a textura das pedras e a sutileza dos acabamentos conferem uma sensação tátil que convida ao toque.

Apartamento Miguel Tostes / BARRA Arquitetos - Imagem 5 de 36
Apartamento Miguel Tostes / BARRA Arquitetos - Imagem 5 de 36

Este projeto é um testemunho da habilidade meticulosa da BARRA Arquitetos em transformar visões em realidades palpáveis. A relação entre forma e função atinge um equilíbrio sublime, onde cada detalhe é cuidadosamente ponderado para criar uma experiência sensorial única e inesquecível. Ao final, o apartamento Miguel Tostes não é apenas um espaço para viver, mas um poema arquitetônico que celebra a beleza do cotidiano.

Apartamento Miguel Tostes / BARRA Arquitetos - Imagem 6 de 36
Apartamento Miguel Tostes / BARRA Arquitetos - Imagem 6 de 36

Newsletter

Receba nossa edição trimestral sobre arquitetura contemporânea.