Harmonia Urbana: Renascimento em Saint-Denis

Um novo marco de elegância arquitetônica e compromisso social resplandece em ruas históricas.

Saint-Denis 44 Housing Units

Em uma jornada de transformação e renascimento, a agência de arquitetura DREAM concluiu um projeto de renovação urbana de profundo impacto social em Saint-Denis, uma localidade que carrega em suas ruas histórias de tragédia e resistência. Localizado entre a Rue Fraizier e a Rue du Landy, este novo complexo residencial simboliza um passo significativo na revitalização do bairro, 24 anos após um incêndio devastador consumir um edifício degradado. Este projeto não apenas marca o primeiro desenvolvimento habitacional sob o regime de Bail Réel Solidaire na região, mas também se destaca por sua ambição arquitetônica e integração harmoniosa ao tecido urbano.

Saint-Denis 44 Housing Units
Saint-Denis 44 Housing Units

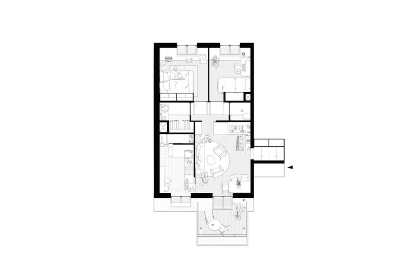
No fatídico 2 de fevereiro de 2001, um incêndio mortal devastou um edifício antigo e precário na Rue Fraizier, revelando as condições insalubres de vida e a urgência de uma transformação urbana. Hoje, o bairro se reergue com uma nova visão de inclusão, diversidade social e espaços verdes. O complexo residencial entregue pela DREAM é a personificação dessa renovação, oferecendo 44 unidades habitacionais que variam entre aluguel social e propriedade compartilhada. Inspirado na qualidade das residências individuais, o projeto oferece tipologias únicas para cada unidade, muitas delas atravessando de um lado a outro e orientadas para maximizar a luz natural e a ventilação.

Saint-Denis 44 Housing Units
Saint-Denis 44 Housing Units

Com uma arquitetura que preza pela precisão e qualidade de execução, cada unidade foi desenhada para se alinhar à nova carta de qualidade de construção da Plaine Commune. Os apartamentos são inundados por luz, confortáveis e bem ventilados, cada qual com uma sequência de entrada que inclui espaços de armazenamento e cozinhas banhadas por luz natural. As grandes janelas panorâmicas conectam as áreas de estar a um balcão ou, no caso do térreo, a um jardim privativo.

Saint-Denis 44 Housing Units
Saint-Denis 44 Housing Units

A estética do projeto é uma ode à simplicidade gráfica e ao design de baixo carbono, com uma composição rítmica de volumes que alternam entre madeira e metal nas fachadas. O uso de materiais brutos, combinado com as linhas finas dos brises de madeira e os forros das varandas, suaviza a massa do edifício, criando uma leveza visual genuína. Essa dança de materiais e texturas promove uma integração sensível ao ambiente urbano, assegurando o manejo ideal da luz solar e das sombras, ao mesmo tempo que oferece uma gama variada de espaços exteriores.

Saint-Denis 44 Housing Units
Saint-Denis 44 Housing Units

A construção off-site foi uma estratégia chave para garantir a qualidade e a coerência estrutural deste edifício de estrutura mista de madeira e concreto. As fachadas de estrutura de madeira, que incorporam revestimentos metálicos e acabamentos de madeira, foram totalmente manufaturadas em oficina, assegurando uma execução impecável e detalhamento preciso. As varandas, estruturas autoportantes de madeira e metal, foram também prefabricadas, repousando sobre vigas escalonadas que se integram elegantemente ao conjunto, refinando o perfil da fachada.

Saint-Denis 44 Housing Units
Saint-Denis 44 Housing Units

O bloco habitacional se abre para um generoso jardim, visível através de dois saguões de passagem acessíveis tanto pela Rue du Landy quanto pela Rue Fraizier. Quase todas as unidades se beneficiam plenamente deste pulmão verde. Ademais, o projeto coloca ênfase especial nos espaços compartilhados, concebidos em colaboração com o Plaine Commune Habitat para fomentar interação e diversidade social. O espaçoso e acolhedor saguão de entrada convida os residentes a pausar e se encontrar, funcionando como um espaço comunitário. Jardins nos telhados de cada edifício oferecem áreas de relaxamento e trocas sociais.

Saint-Denis 44 Housing Units
Saint-Denis 44 Housing Units

Através deste projeto, a agência DREAM oferece aos residentes um ambiente de vida reimaginado, seguro e inclusivo, onde a arquitetura encontra a função social em um delicado equilíbrio de forma e propósito.

Saint-Denis 44 Housing Units
Saint-Denis 44 Housing Units

Newsletter

Receba nossa edição trimestral sobre arquitetura contemporânea.