Refúgio de Esperança em Dos Bocas

Um enclave de resiliência e beleza onde a arquitetura celebra a dignidade da vida rural.

Teacher's House

No coração da pitoresca Dos Bocas, na província de El Seibo, República Dominicana, encontra-se a Casa do Professor, um projeto que transcende a mera edificação. Esta comunidade, enraizada em tradições de pecuária e agricultura, enfrenta desafios estruturais que a isolam das oportunidades urbanas. Em setembro de 2022, a tempestade tropical Fiona evidenciou essas fragilidades, ao devastar mais de 60% das habitações. Foi nesse contexto que surgiu a iniciativa, liderada pela associação sem fins lucrativos Guakia Ambiente, o Programa de Pequenos Subsídios e o escritório Øblicuo, em parceria com o Banco BHD. Juntos, empreenderam a construção de 70 lares seguros e resilientes, concebidos para resistir a fenômenos naturais.

Teacher's House
Teacher's House

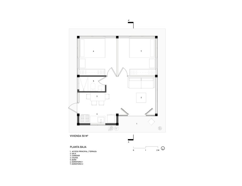
A Casa do Professor, última a ser erguida neste complexo, é uma ode à flexibilidade e inovação. Graças à abertura de seu proprietário, o projeto evoluiu, corrigindo fragilidades de protótipos anteriores. Com uma área de 50 m², a residência se organiza em quatro módulos: um para cozinha e banheiro, um para sala de estar e dois para dormitórios. Esta disposição modular não só otimiza a circulação, mas também maximiza o uso do espaço.

Teacher's House
Teacher's House

Respeitando as técnicas locais, a construção dividiu-se em duas etapas: a primeira, de maior complexidade e custo, foi executada por profissionais capacitados, garantindo a durabilidade estrutural. A segunda, realizada pelas próprias famílias, promoveu senso de pertencimento, englobando atividades como pintura e revestimentos. A escolha dos materiais, todos disponíveis num raio de 4 km, reflete um compromisso com a estética e sustentabilidade. Blocos de concreto, folhas de aluzinc galvanizado, madeira de pinho tratada e pisos de concreto polido compõem essa paleta, afirmando que a beleza não é privilégio, mas direito.

Teacher's House
Teacher's House

A habitação celebra a vida rural, com sua área social aberta ao exterior, um convite para a convivência familiar, com vizinhos e animais domésticos, perpetuando a cultura comunitária dominicana. Tal desenvolvimento habitacional redefine a noção de progresso, não apenas como crescimento econômico, mas como a dignidade e qualidade das moradias em todas as esferas sociais. Um lar transcende o abrigo físico, sendo o berço de sonhos e emoções, um espaço onde agricultores e criadores educam suas famílias, sustentando as cidades com alimentos e recursos.

Teacher's House
Teacher's House

A Casa do Professor é mais que um projeto arquitetônico; é um manifesto de que a verdadeira essência da arquitetura reside na capacidade de transformar vidas, respeitando o contexto e enaltecendo a identidade cultural. Sob a luz filtrada pelas árvores e o som do rio ao fundo, cada detalhe arquitetônico se torna uma poesia visual, um testemunho da resiliência e beleza inerente à vida no campo.

Teacher's House
Teacher's House