Centro de Educação Infantil Postiljooni / Verstas Architects

Uma integração harmoniosa entre arquitetura e natureza

Postiljooni Daycare Center / Verstas Architects - Image 1 of 24

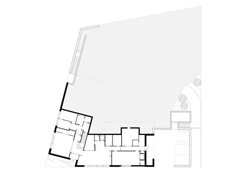
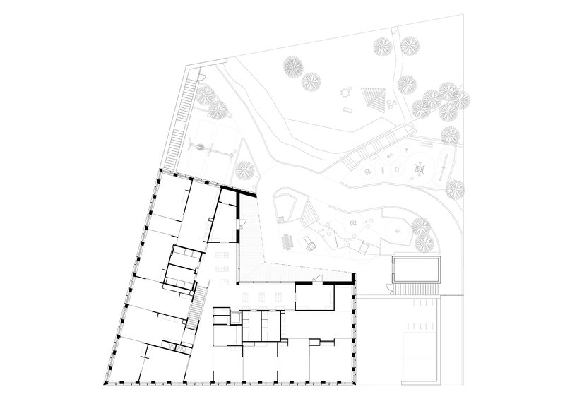
O Centro de Educação Infantil Postiljooni está situado no novo distrito residencial de Postipuisto, que foi desenvolvido no local de um antigo terminal logístico e área de depósito ferroviário. Esta construção compacta para a educação infantil ocupa uma localização de destaque na interseção entre Kollikatu e Lavakatu, onde a estrutura dos blocos urbanos se encontra com o terreno rochoso e acidentado da região. A abordagem de design foi alinhar o edifício com as ruas circundantes, enquanto preservava a característica natural mais elevada da área—Kollikallio—como parte integrante do playground infantil. Este projeto reflete a busca por uma conexão entre os espaços urbanos e a natureza, criando um ambiente estimulante e seguro para o desenvolvimento das crianças. A arquitetura não apenas atende às necessidades funcionais do centro, mas também cria um espaço que incentiva a exploração e o aprendizado ao ar livre. Os materiais utilizados na construção foram escolhidos cuidadosamente para harmonizar com a paisagem natural, promovendo uma estética que respeita o entorno. Dessa forma, o Centro de Educação Infantil Postiljooni se torna um exemplo de como a arquitetura pode dialogar com a natureza e atender às demandas contemporâneas de um espaço educacional.

Newsletter

Receba nossa edição trimestral sobre arquitetura contemporânea.