Edifício LC 843 | Escala Arquitectos + A+[eu] Arquitectura e estratégias urbanas

Redensificação urbana como desafio arquitetônico

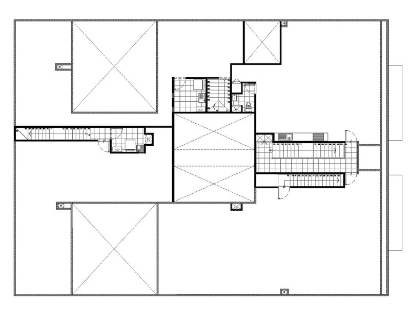
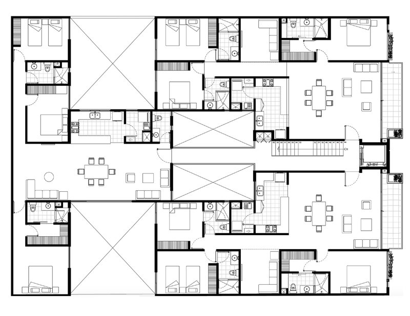
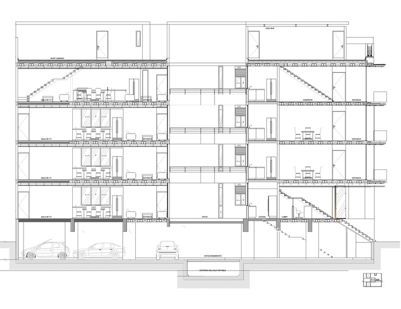
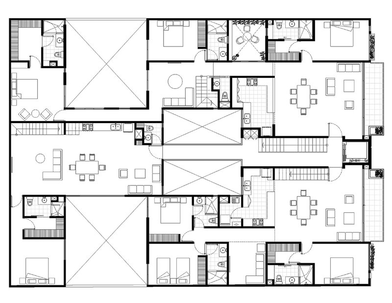
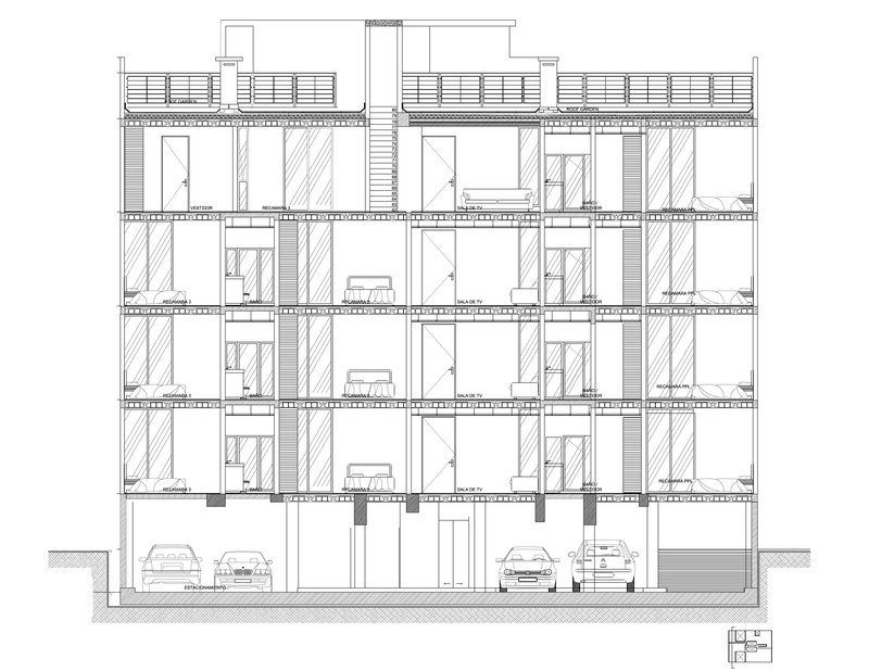
O Edifício LC 843 representa a redensificação urbana, um desafio duplo para os arquitetos: criar espaços habitáveis de alta qualidade humana e garantir uma inserção respeitosa em um contexto já construído. As exigentes regulamentações, assim como a busca por altos retornos financeiros por parte dos promotores, tornam-se catalisadores de design e criatividade; ferramentas que promovem edificações de alta qualidade arquitetônica e fabricação meticulosa. O projeto do Edifício LC 843 fundamenta-se na intenção de criar espaços de alta qualidade, maximizando iluminação e vistas sem comprometer a privacidade dos habitantes. Organizar doze residências onde antes existiam apenas duas nos força a pensar sobre o uso máximo de recursos – financeiros, territoriais e ambientais – sem sacrificar a qualidade espacial desejada por um mercado altamente exigente. O edifício possui quatro andares e um subsolo, com três apartamentos por andar, organizados em torno de três pátios ajardinados que aumentam o bem-estar dos moradores. A estrutura é resolvida com paredes e colunas de concreto armado, permitindo que os espaços sejam mais abertos e fluidos. Não há truques geométricos ou desperdício arbitrário de espaço; o desempenho do edifício é a base das decisões de design. Os materiais de construção proporcionam uma sensação de calma e bem-estar: mármore travertino, pedra basalto, madeira de carvalho, aço e concreto aparente. Gostamos de pensar que o edifício envelhecerá com dignidade, com menos exigências de manutenção e encargos para seus futuros habitantes. O jardim central, o coração do projeto, é experienciado de dentro de todos os apartamentos e em todos os andares, a natureza está sempre presente, tanto fora quanto dentro do edifício. Sistemas de irrigação automatizados, coleta de esgoto e de águas pluviais garantem uma melhor adaptação das mais de trinta espécies de plantas do projeto paisagístico. No telhado, os serviços são concentrados em uma área menor para permitir uma maior superfície para um espaço de uso comum que fomente a interação social e o desfrute de uma das ruas mais bonitas do bairro. Um jardim dentro de um edifício, um edifício dentro da cidade. A cidade como um habitat humano do século XXI: a redensificação pode resolver os desafios ambientais de nossos tempos, aproveitando território, infraestrutura, espaço e luz.

Newsletter

Receba nossa edição trimestral sobre arquitetura contemporânea.