Mitsugo House: Um Refúgio de Serenidade em Meio ao Caos Urbano

Descubra a harmonia entre o espaço interior e a natureza na vibrante Jacarta

Mitsugo House

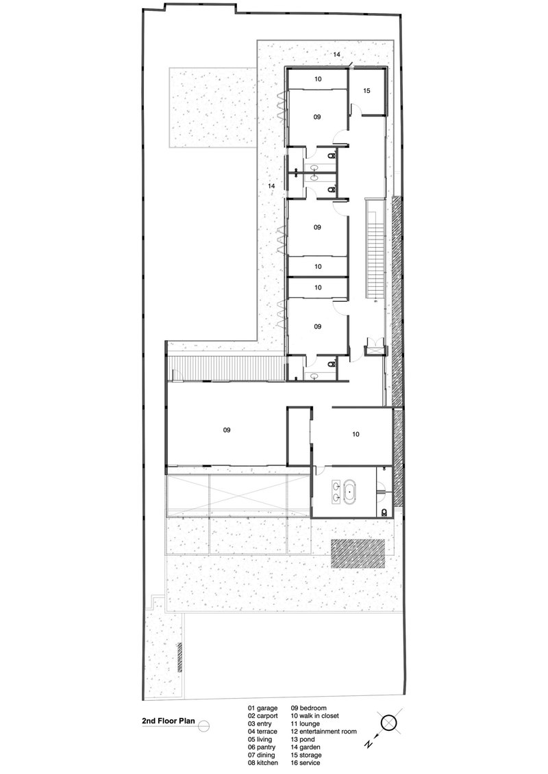
Em meio ao vibrante e densamente povoado centro de Jacarta, ergue-se a Mitsugo House, uma joia arquitetônica que se destaca por sua capacidade de oferecer privacidade e um oásis verde em um ambiente urbano agitado. O desafio de criar um espaço íntimo em um bairro onde as casas ocupam todo o terreno e as ruas são estreitas foi abordado de maneira magistral ao recuar o segundo andar em relação à rua, criando uma fachada que respeita e interage com o entorno sem sacrificar a intimidade dos moradores.

Mitsugo House
Mitsugo House

O uso de treliças de madeira e elementos naturais, como árvores majestosas, não apenas intensifica a privacidade, mas também permite que a luz e a brisa circulem livremente, proporcionando uma sensação de amplitude e liberdade dentro da residência. Este design engenhoso estabelece uma clara demarcação entre o espaço público e o retiro privado que a casa representa, enquanto abraça uma conexão inquebrantável com o exterior. Ao adentrar o lar, à direita da entrada, um vazio arquitetônico revela duas árvores esguias que se erguem, suas copas visíveis diretamente da janela do quarto principal, oferecendo uma visão serena de um oásis natural.

Mitsugo House
Mitsugo House

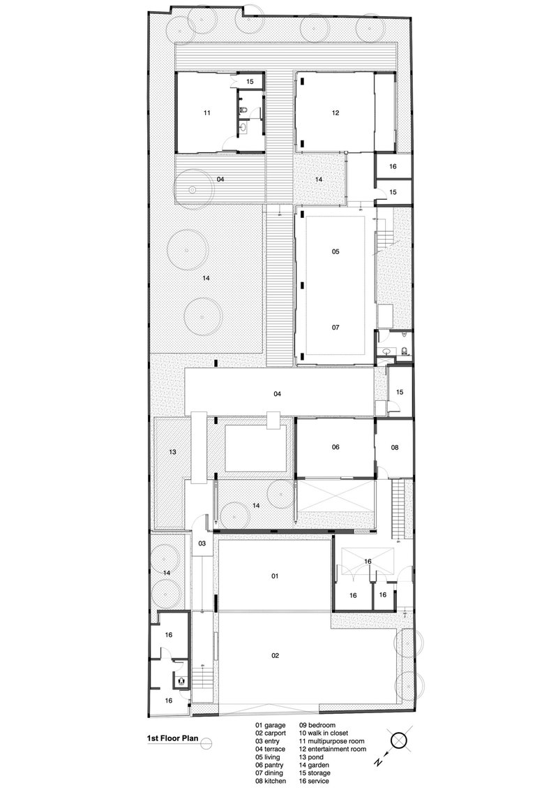
Mais adiante, um lago de carpas infunde tranquilidade aos residentes e visitantes, enquanto formações de pedras naturais se destacam entre a vegetação exuberante do jardim. A sala de estar, aberta e arejada, flui diretamente para o pátio central, consolidando uma relação íntima e contínua com a natureza. Este pátio, verdadeiro coração da casa, é um espaço destinado ao convívio familiar e à contemplação ao ar livre, onde a presença da natureza é uma constante.

Mitsugo House
Mitsugo House

Portas de vidro deslizantes, amplamente empregadas ao longo da residência, proporcionam abundante luz natural e flexibilidade no controle da circulação do ar, aprimorando a experiência de habitar o espaço. Esta abordagem não apenas enriquece a vivência dentro da casa, mas também contribui para a regulação da luz solar, da temperatura e do fluxo de ar, garantindo conforto durante todo o ano.

Mitsugo House
Mitsugo House

Na parte posterior do térreo, um lounge semiprivado conecta-se a um pequeno jardim de pedras, um espaço onde os proprietários podem receber seus convidados com elegância. Este jardim também é acessível a partir do solário, que desempenha múltiplas funções, oferecendo versatilidade ao design da casa.

Mitsugo House
Mitsugo House

Os materiais escolhidos para a Mitsugo House reforçam a conexão com a natureza, com a utilização de madeira de ferro e concreto com textura de madeira que suavizam a aparência exterior da construção, ao mesmo tempo que asseguram sua durabilidade. A madeira de ferro naturalmente evoluirá para uma tonalidade cinza, harmonizando-se com o concreto, criando uma transição fluida entre os espaços internos e o ambiente ao redor.

Mitsugo House
Mitsugo House

A Mitsugo House, com sua estética refinada e integração harmoniosa com o meio ambiente, representa um exemplo notável de como a arquitetura pode transformar desafios urbanos em oportunidades para criar espaços de serenidade e beleza.

Mitsugo House
Mitsugo House