O Refúgio Delicado: Uma Dança Entre Luz e Espaço

Uma jornada arquitetônica onde a restrição se torna arte e a luz se transforma em protagonista.

Casa 2700 / IGArchitects - Fotografia de Exterior, Janela, Fachada

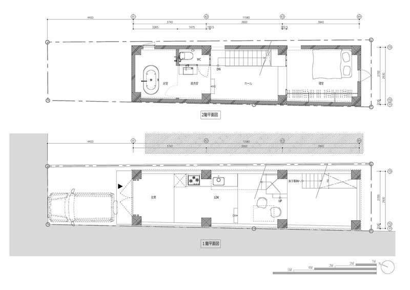
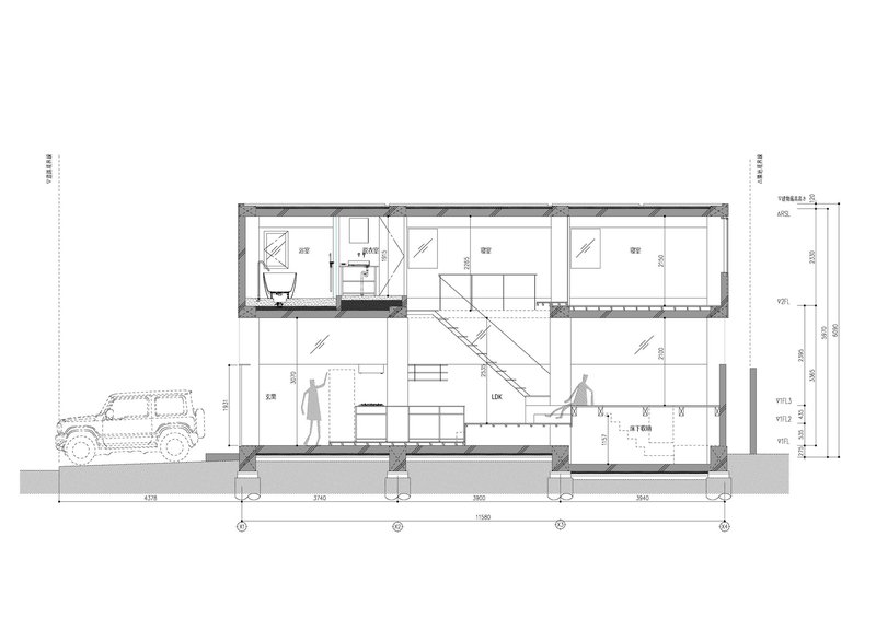
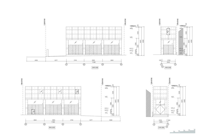
Em um terreno que poderia parecer um desafio intransponível para muitos, com apenas 2,9 metros de fachada e uma profundidade que se estende por 16 metros, a Casa 2700 emerge como um testemunho da engenhosidade arquitetônica moderna. Localizada em um bairro onde a expansão das vias urbanas ditou os contornos dos lotes, esta residência para um jovem casal se destaca não apenas pela forma, mas sobretudo pela maneira como se integra ao seu entorno.

Casa 2700 / IGArchitects - Fotografia de Exterior, Janela
Casa 2700 / IGArchitects - Fotografia de Exterior, Janela

A primeira impressão ao adentrar este recanto é a de uma acolhedora surpresa. A entrada, embora estreita, é concebida de tal forma que convida o visitante a avançar, revelando um interior onde o espaço é expandido através de uma magistral manipulação da luz natural. A relação entre o interior e o exterior é cuidadosamente orquestrada, como uma sinfonia arquitetônica em que cada elemento desempenha seu papel com precisão.

Casa 2700 / IGArchitects - Fotografia de Interiores, Mesa, Cadeira, Viga
Casa 2700 / IGArchitects - Fotografia de Interiores, Mesa, Cadeira, Viga

Os materiais escolhidos para este projeto são de uma elegância sutil. A madeira, presente de forma predominante, aquece o ambiente, enquanto superfícies de vidro estrategicamente posicionadas permitem que a luz do dia penetre profundamente no coração da casa. Este jogo de transparências e opacidades cria uma série de cenários luminosos que mudam ao longo do dia, oferecendo uma experiência sensorial rica e envolvente.

Casa 2700 / IGArchitects - Fotografia de Interiores, Dormitório
Casa 2700 / IGArchitects - Fotografia de Interiores, Dormitório

O layout interno é uma dança entre função e forma. Cada metro quadrado é utilizado com inteligência, onde a linearidade do espaço é quebrada por elementos que definem áreas distintas sem comprometer a fluidez. A cozinha, por exemplo, é um espaço que se abre generosamente para a sala de estar, promovendo a convivência e o diálogo entre os habitantes.

Casa 2700 / IGArchitects - Fotografia de Exterior
Casa 2700 / IGArchitects - Fotografia de Exterior

O quarto principal, situado na parte posterior da casa, é um santuário de tranquilidade. Aqui, a conexão com o exterior é ainda mais pronunciada. Uma janela ampla emoldura a paisagem urbana, proporcionando um ponto de contemplação que, ao mesmo tempo, garante privacidade e introspecção.

Casa 2700 / IGArchitects - Fotografia de Exterior, Fachada, Janela
Casa 2700 / IGArchitects - Fotografia de Exterior, Fachada, Janela

A Casa 2700, em sua essência, é uma obra que transcende os limites impostos pelo seu terreno. É um exemplo de como a arquitetura pode responder de forma criativa a desafios aparentemente insuperáveis, transformando restrições em oportunidades para a beleza e a inovação. O projeto demonstra que, em arquitetura, menos pode ser mais, e que a verdadeira sofisticação reside nos detalhes e na capacidade de criar harmonia entre todos os elementos constituintes.

Casa 2700 / IGArchitects - Fotografia de Exterior, Fachada, Janela
Casa 2700 / IGArchitects - Fotografia de Exterior, Fachada, Janela

Em suma, esta residência é uma celebração da capacidade humana de moldar o espaço segundo as necessidades e desejos, respeitando a natureza e valorizando a qualidade de vida de seus ocupantes. Ao final desta jornada, a Casa 2700 se afirma não apenas como um espaço físico, mas como uma experiência poética que ressoa nas mentes e nos corações de todos que têm o privilégio de vivenciá-la.

Casa 2700 / IGArchitects - Fotografia de Exterior, Fachada, Janela
Casa 2700 / IGArchitects - Fotografia de Exterior, Fachada, Janela

Newsletter

Receba nossa edição trimestral sobre arquitetura contemporânea.